АКПП АКПП - вопросы и проблемы

Dmitriy_K

Свой в доску
30 Июль 2007
708
104
43
Приморский край
Езжу на ...
Jimny GB33W ПР АКПП, TLC80
mistiq, штатный врёт. Я так понимаю, мозг его воспринимает как дискретный датчик (JB33W) и показывает всего две температуры: -40 (масло холодное) и 100 (прогрето). Так вот, после того как долго едешь и отключишь зажигание, включаешь - и мозг видит, что масло холодное. Проходит ровно 6 минут - поступает сигнал, что оно горячее. Снова заглушил - снова 6 минут оно якобы холодное, и так постоянно.
Поскольку оригинальный датчик надо ждать 20 дней - хочу приколхозить неродной. Вопрос в том, какой.

Постепенно прихожу к мысли о том, что хорошим решением будет:
1. Закоротить контакты термодатчика прямо на входе в мозг АКПП (сине-черный и синий провода, контакты 5 и 14 большого разъема), тогда он будет думать, что температура всегда достаточная.
2. Поставить отдельный красивый показометр температуры декстрона, например такой:
http://ajs.su/depo-tajvan/serija-dlja-jaht-52mm/3338/
и отключать овердрайв до прогрева до 60 градусов.
3. При оказии в гараже (он очень далеко) взять нормальный рабочий термодатчик, поменять его и отключить п. 1.
Интересно ваше мнение.
 
Последнее редактирование модератором:


Dmitriy_K

Свой в доску
30 Июль 2007
708
104
43
Приморский край
Езжу на ...
Jimny GB33W ПР АКПП, TLC80
Schir, мне кажется, или на нижней картинке ошибка?
В мануале 99500_81A02_01E.pdf в аналогичной таблице указаны те же цифры, но не в омах, а в килоомах.
 

ilyushka

пенсия
Премиум-аккаунт
11 Сентябрь 2008
1,681
630
113
49
Камчатка
Езжу на ...
Jimny JB43W AT 2001 г.в. Made in Japan
SX-4 JA11 AT 2006 г.в. Made in Japan
Jimny JB43W AT 2005 г.в. Made in Japan
  • Нравится
Реакции: 1 человек

Schir

Эксперт
Премиум-аккаунт
27 Июнь 2011
3,093
1,542
113
37
Екатеринбург
Езжу на ...
Джимник 2003 г.в. 1,3 МКПП, теперь 1,5 АКПП.
или на нижней картинке ошибка?
может и ошибка доставерных данных у меня нет, эта картина из мануала 99500_81A10_01E_2
даже скорее всего ошибка ибо 0,6Ом это практически не реально измерить
 
Последнее редактирование модератором:


MPV

Сузуковод со стажем
7 Сентябрь 2007
1,085
169
63
Новосибирск
Езжу на ...
Suzuki Jimny 2002 г. Jb43W, Come-up 6000, bfg mt 215/75/15
Двигатель М15А
Может кто сталкивался, коробка стала буксовать на 4 передаче. То есть едешь на 3 передачи, переключается на 4, обороты двигателя сильно увеличиваются, сваливается на 3 обратно. Если ехать на первых 3х передачах, то все нормально.
Диагностика показала только 18 ошибку.
 

Zybr

Наш человек
5 Июнь 2012
114
31
0
66
Караганда
Езжу на ...
Jimny , JB43, 2003, V-1.3, M13A, АКПП, левый руль, серебро.
Вот попалось интересное видео по замерам температуры АКПП и двигателя при движении в затяжной подъём. Авто, правда тойота Л/К, но принцип то один...срочно надо ставить допрадиатор на АКПП :sad:
 

Askos

Джипер-домосед
12 Июнь 2008
891
535
93
49
Санкт-Петербург
Езжу на ...
Шкода Карок 2020
Может кто сталкивался, коробка стала буксовать на 4 передаче. То есть едешь на 3 передачи, переключается на 4, обороты двигателя сильно увеличиваются, сваливается на 3 обратно. Если ехать на первых 3х передачах, то все нормально.
У меня так было, когда окончательно облысели фрикционы. Потом довольно быстро и 3-я передача пропала.
В результате меняли фрикционы и еще какой-то соленоид.
 

Alex0876

Осваивающийся
3 Декабрь 2011
24
1
3
Комсомольск-на-Амуре
Езжу на ...
Джимми
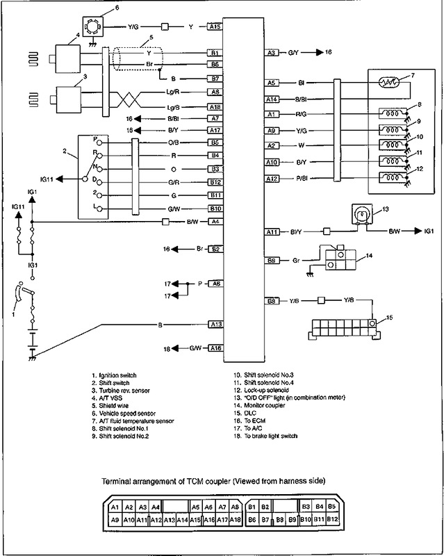
SOS! Помогите! Подскажите мне недалекому, где на моем джими в автомате этот проклятый соленоид №2, или соленоид "В" - что обязательно должно быть одно и тоже. Самодиагностика показала ошибка 24, вскрывал поддон, звонил клапана на сопротивление, щелкал их аккумулятором,нашел что один из них щелкает вообще слабо. На радостях выписал - заменил, сбросил ошибки - покатался, та же фигня, ничего не изменилось. Вывод - заменил не тот. Но остальные то вроде нормальные были. Диагностика после ремонта опять показала - 24. Ткните мне пальцем по схеме где это номер 2 (или "В") клапан.
SuzukiJimnyJB33W - 1300 wide, двиг G13, 98г., правый руль.
 

MPV

Сузуковод со стажем
7 Сентябрь 2007
1,085
169
63
Новосибирск
Езжу на ...
Suzuki Jimny 2002 г. Jb43W, Come-up 6000, bfg mt 215/75/15
Двигатель М15А
Напрямую картинки где указан клапан не нашел.
Есть только разъем в нем 4 контакт соленоид B.
Верхний ряд из 3 контактов 1 и сдвоенный 2
Верхний 1-2-2
Нижний ряд 6-5-4-3
Тестером можно найти где он на гидроблоке.
 
Последнее редактирование модератором:




Alex0876

Осваивающийся
3 Декабрь 2011
24
1
3
Комсомольск-на-Амуре
Езжу на ...
Джимми
Напрямую картинки где указан клапан не нашел.
Есть только разъем в нем 4 контакт соленоид B.
Верхний ряд из 3 контактов 1 и сдвоенный 2
Верхний 1-2-2
Нижний ряд 6-5-4-3
Тестером можно найти где он на гидроблоке.

Вот это моя коробка.Я поменял клапан 24 753 D который внизу. Их вообще два взаимозаменяемых. Второй - в противоположном углу на обратной стороне блока клапанов, сверху. Есть подозрение что именно он и есть клапан № "2 (или В). По некоторым другим схемам он и обозначается как Соленоид №2.

2016-08-29_18-52-26.png
2016-08-29_18-52-26.png 2016-08-29_18-52-26.png [DOUBLEPOST=1472471184,1472468429][/DOUBLEPOST]
Напрямую картинки где указан клапан не нашел.
Есть только разъем в нем 4 контакт соленоид B.
Верхний ряд из 3 контактов 1 и сдвоенный 2
Верхний 1-2-2
Нижний ряд 6-5-4-3
Тестером можно найти где он на гидроблоке.
Этот разьем?
 

Вложения

MPV

Сузуковод со стажем
7 Сентябрь 2007
1,085
169
63
Новосибирск
Езжу на ...
Suzuki Jimny 2002 г. Jb43W, Come-up 6000, bfg mt 215/75/15
Двигатель М15А
На схеме есть контакт блока управления.
До него даже проще добраться.

Вот это моя коробка.Я поменял клапан 24 753 D который внизу. Их вообще два взаимозаменяемых. Второй - в противоположном углу на обратной стороне блока клапанов, сверху. Есть подозрение что именно он и есть клапан № "2 (или В). По некоторым другим схемам он и обозначается как Соленоид №2.

Посмотреть вложение 103350 Посмотреть вложение 103350 Посмотреть вложение 103350 [DOUBLEPOST=1472471184,1472468429][/DOUBLEPOST]
Этот разьем?
 

antidevastator

Редкий гость
30 Август 2016
5
0
0
41
Езжу на ...
suzuki jimny wide 1998 год. jb33w g13b
Здравствуйте. Прошу помощи, так как не знаю уже что и делать.
Купил джимник(suzuki jimny wide 1998 год. jb33w g13b) чуть больше года назад. Собственно, как и права получил... После покупки масло в АКПП не менял. Вроде было чистенькое.
С автоматом все было нормально. 1 раз, зимой ушел в аварийный режим. Проверил уровень масла, было ниже нормы. Долил. И стал перед тем как ехать прогревать автомат. Больше не повторялось.
Со временем стал все сильнее пинаться со второй на первую. Иногда как бы зависал и потом начинал ехать рывком, чуть ли не с пробуксовкой.
Собрался менять жижу сам частичной заменой, купил масло.
Но уговорили поехать на отдых, последние дни отпуска были.
Разогнался перед горочкой до 120...и на подъеме обороты подпрыгнули, автомат в аварийном режиме, как я понимаю на второй. Мозги защелкали.
Кое как доехал обратно...60-70 км.
Начитался форумов, в том числе и этого. Пропаял релешку. Считал ошибки. Были 18 и 21. 18 возможно осталась после затупа зимой?...
21 указывала на соленоид A.
Поехал к сервисменам. Автоматчик посмотрел жижку, сказал все нормально иди к электрикам. Электрики посмотрели, и сказали скорее всего мозги автомата сдохли, езжай покупай. Дескать мозги не должны щелкать когда просто включаешь зажигание(как я их понял).

Позвонил другу на таком же джимнике. Сняли с его машинки мозги, поставили. Так же щелкают.

Решил попробовать во всем разобраться сам. Прозвонил проводку от мозгов. Потом на автомате. Действительно оказалось соленоид А не звонится.
Слил жижу, снял поддон. Вроде все без криминала и горелого запаха, совсем чуть чуть стружка на магните была и муть вокруг магнита. Жижа конечно темная. Действительно отошла пайка на соленоиде, но и его до меня уже чинили. Была сломана лапка крепления, видна сварка.
Ну думаю раз раньше не отвалилось, все норм будет. Пропаял контакт. Все хорошо вроде.
Фильтр не менял. Залил жижу. Уровень точно посмотреть не удалось, не нашел совсем ровное место рядом.
Доехал до дома, не далеко. Все переключалось. С утра доехал до работы. Там долил чуть чуть жижки. Было на пару сантиметров ниже минимальной отметки.

Вечером поехал до дома.. заехал в горочку и чувствую, что то не то...не ужели снова? И да...мозги защелкали.
Считал ошибки...она самая 21. Да..еще и попробовал скинуть память компа, переключением l-2. Лампочка замигала...видимо скинулись. Щелчки остались.
С утра, думаю отгоню в гараж...наверное хреновый я пайщик.
Но машина не едет...как будто давления не хватает в автомате. Задняя еще хоть как то пытается...вперед почти никак. То делает попытки, то встанет.
Вызванил друга, отбуксировали в гараж.
Слил жижу. Жижа начала вонять горелым!
На соленоиде отвалилась та сама лапка, которая была приварена....ну и пайка моя заодно.

Пошел к ремонтникам, продали они мне рабочий соленоид. Щелкал все норм. Сопротивление проверил.
Поставил его, мозги не щелкают. Залил жижу. Фильтр не менял.
Итог...не едет. Назад вроде пытается, вперед тоже делает робкие попытки, потом вообще и не пытается.

Считал ошибки. Не скидывал предыдущие. Осталась 21. Если скинуть, видимо пропадет и снова появилась 18. Неправильное передаточное число акпп, большая разница между датчиками частоты вращения входного и выходного вала. Но вряд ли из за нее совсем ехать бы перестал...
Еще последнее время появился посторонний шум. Чуть чуть проедишься пропадает. Как будто какой то насос качает с трудом...или что то где то крутится и цепляет за что то..не могу понять откуда. Возможно и с автомата...Может это и были первые предпосылки его смерти?

Вот теперь не знаю что делать. Автомату хана? Искать контрактный, буксировать в ремонт(дальше чем висят электроклапана я не рискну лесть...максимум фильтр снять...)? Сменить еще раз жижу и промыть фильтр?
Уже устал...и убит морально...

Все еще усугубляется тем, что делаю все первый раз...и всегда был далек от машин...я больше по компам. Зачем полез туда, где ничего не понимаю...
 
Последнее редактирование модератором:

MPV

Сузуковод со стажем
7 Сентябрь 2007
1,085
169
63
Новосибирск
Езжу на ...
Suzuki Jimny 2002 г. Jb43W, Come-up 6000, bfg mt 215/75/15
Двигатель М15А
Вот что то такое было у меня на машине.
Вперед не ехал, назад кое как. Смотрел давление маслонасоса, оказалось давления нет.
Дальше смотреть не стал, поменял коробку.
Диагностику лучше делать с помощью EML327 + SZ Viewer, самодиагностика мало что показывает. У меня последний раз только 18 была.
А программа еще две показала.
 



MPV

Сузуковод со стажем
7 Сентябрь 2007
1,085
169
63
Новосибирск
Езжу на ...
Suzuki Jimny 2002 г. Jb43W, Come-up 6000, bfg mt 215/75/15
Двигатель М15А
Одна P0705, вторую не запомнил. Самодиагностика только 18 моргала.
Скинул и все заработало.
Больше ошибок не появлялось и все работает.
 

Askos

Джипер-домосед
12 Июнь 2008
891
535
93
49
Санкт-Петербург
Езжу на ...
Шкода Карок 2020
Как будто какой то насос качает с трудом...
промыть фильтр?
У меня, когда горелые фрикционы засирали масло, фильтр забивался. Насос работал с натужным звуком. При определенной степени забивки фильтра вообще переставал создавать давление, машина не ехала. Замена фильтра и масла помогала... на время. Ибо дальше масло опять засиралось. Пока фрикционы не стерлись до металла. Так что надо бы искать причину, почему масло горелое. Или менять автомат.
 

antidevastator

Редкий гость
30 Август 2016
5
0
0
41
Езжу на ...
suzuki jimny wide 1998 год. jb33w g13b
У меня, когда горелые фрикционы засирали масло, фильтр забивался. Насос работал с натужным звуком. При определенной степени забивки фильтра вообще переставал создавать давление, машина не ехала. Замена фильтра и масла помогала... на время. Ибо дальше масло опять засиралось. Пока фрикционы не стерлись до металла. Так что надо бы искать причину, почему масло горелое. Или менять автомат.
Изначально возможно сказывалось несвоевременная замена масла.

А горелое стало, видимо после того как лапка на соленоиде отвалилась. Система думала что он сработал, закрылся...но видимо масло пропускал и пытались включиться сразу две скорости....или наоборот так встал, что в открытом состоянии масло не пропускал...из за этого было мало масла в системе и пошел перегрев, когда я пытался ехать.

Сложно ли фильтр промыть? Чем? Продуть его нечем, компрессора нет.
 

ilyushka

пенсия
Премиум-аккаунт
11 Сентябрь 2008
1,681
630
113
49
Камчатка
Езжу на ...
Jimny JB43W AT 2001 г.в. Made in Japan
SX-4 JA11 AT 2006 г.в. Made in Japan
Jimny JB43W AT 2005 г.в. Made in Japan

antidevastator

Редкий гость
30 Август 2016
5
0
0
41
Езжу на ...
suzuki jimny wide 1998 год. jb33w g13b
Если фильтр войлочный (до 2004 г.в.), то тока менять, а с мет. сеткой - растворителем промыть можно.
Думал что сеточка. Все же оказался войлочный. Заказал в ближайшем магазинчике фильтр...завтра привезут.
Поговорил с мастером по автоматам. Сказал, что он уже 100% мертвый. И либо кап ремонт, либо контрактный.
С другим по телефону говорил, с джимни бокса во владике(если кто знает). Он все же посоветовал начать с фильтра.

У меня уже почти нечего лить в автомат. Если менять фильтр, то придется еще жижи докупить. Или не стоит тратится и залить слитую жижку обратно? Поедет вообще или нет...[DOUBLEPOST=1472724054,1472613998][/DOUBLEPOST]Фильтр поменял. Старый был прилично засран. Решил проверить соленоиды, если фильтр засран, то и они скорее всего.
Теперь у меня не понятка. Решил не спешить и разобраться.
Соленоид А, который я менял на БУ продувается ртом. Другие два, которые после него решил проверить не продуваются.

У них у всех одинаковое положение при отсутствие напряжения или по разному? Либо соленоид А дохлый, либо остальные надо чистить. Или все же у них разное положение? По мануалу, я пока не совсем понял.
Их можно промыть растворителем?
 
Последнее редактирование модератором:





Albatron

Редкий гость
31 Август 2016
5
12
0
39
Езжу на ...
Suzuki Jimny Wide 1998 G13b JB33
Привет!
Первое моё сообщение сдесь.

Проблемы с АКПП.
Коробка стала "тикать"/комп.и т.д. 3я..
Благодоря Форуму снял ошибки(которых миллион) решил посмотреть через час.Итог /52 комп.

Сегодня снял Коробку упр.Акпп.
Ничего вроде необычного.

Машина троит-печка,фары
С чего начать?
 

кокс

Опытный сузуковод
26 Сентябрь 2011
813
86
28
московская область
Езжу на ...
сузуки Джимни 0.7
52- нарушение в питании мозгов . Отсюда и Ваш миллион других ошибок .
Обычно устраняется пропайкой релюшки питания в мозгах ( один из контактов начинает барахлить)
Троить не должно
 

ilyushka

пенсия
Премиум-аккаунт
11 Сентябрь 2008
1,681
630
113
49
Камчатка
Езжу на ...
Jimny JB43W AT 2001 г.в. Made in Japan
SX-4 JA11 AT 2006 г.в. Made in Japan
Jimny JB43W AT 2005 г.в. Made in Japan

allodin

Наш человек
14 Август 2008
217
49
0
Владивосток
Езжу на ...
jb43w, 2005г, a/t, м18
Привет!
Первое моё сообщение сдесь.

Проблемы с АКПП.
Коробка стала "тикать"/комп.и т.д. 3я..
Благодоря Форуму снял ошибки(которых миллион) решил посмотреть через час.Итог /52 комп.

Сегодня снял Коробку упр.Акпп.
Ничего вроде необычного.

Машина троит-печка,фары
С чего начать?
52 ошибка не пропай релюхи. Не можешь сам Пропаять - привези мозги пропаяю. Это я тебе про фильтр по телефону сказал
 

Albatron

Редкий гость
31 Август 2016
5
12
0
39
Езжу на ...
Suzuki Jimny Wide 1998 G13b JB33
52 ошибка не пропай релюхи. Не можешь сам Пропаять - привези мозги пропаяю. Это я тебе про фильтр по телефону сказал
Я б привез_ Но я в Магадане)
Спасибо за советы.

У нас скоро зима, решил основательно заняться.Прицепом,раскидал` всего Джимника`
Комп АКПП визуально целый_залил его очистителем контактов.
Попробую фотки кинуть..[DOUBLEPOST=1472924371,1472923331][/DOUBLEPOST]И ещё Вопрос,вычитал где то что у Джимника,даже из за перегревших лампочек Стопарей,Габоритов могут появится проблемы с АКПП.
У меня -Когда стоиш на паркинге_включаеш /выключаеш Фары или печку несколько секунд Троит,трясётся весь.

Прошу строго не судить.Опыта мало,в сервис не хочу,обманут.
 


antidevastator

Редкий гость
30 Август 2016
5
0
0
41
Езжу на ...
suzuki jimny wide 1998 год. jb33w g13b
Всем спасибо.
После замены фильтра и промывки соленоидов в бензинчике машинка поехала...ну и плюс два сорванных болта на поддоне...

Только вот седня с утра машина не зоводится...стартер крутит, а толку ноль... Да и в день когда автомат поехал то, тоже не с первого раза завелась...
Как говорят, беда не приходит одна...
 

ilyushka

пенсия
Премиум-аккаунт
11 Сентябрь 2008
1,681
630
113
49
Камчатка
Езжу на ...
Jimny JB43W AT 2001 г.в. Made in Japan
SX-4 JA11 AT 2006 г.в. Made in Japan
Jimny JB43W AT 2005 г.в. Made in Japan
:swoon:[DOUBLEPOST=1472957155,1472957030][/DOUBLEPOST]
Невооруженным взглядом те трещинки можно и не увидеть[DOUBLEPOST=1472957264][/DOUBLEPOST]
Троит,трясётся
Этт нормально... Акум старый?
 

Albatron

Редкий гость
31 Август 2016
5
12
0
39
Езжу на ...
Suzuki Jimny Wide 1998 G13b JB33
Ак
:swoon:[DOUBLEPOST=1472957155,1472957030][/DOUBLEPOST]
Невооруженным взглядом те трещинки можно и не увидеть[DOUBLEPOST=1472957264][/DOUBLEPOST]
Этт нормально... Акум старый?
Акум старый.
Снял вчера клапаную крышку,в одном колодце масло.Резинки свечных кололцев поплавились.Может и из-за этого.[DOUBLEPOST=1472969517][/DOUBLEPOST]Ак
:swoon:[DOUBLEPOST=1472957155,1472957030][/DOUBLEPOST]
Невооруженным взглядом те трещинки можно и не увидеть[DOUBLEPOST=1472957264][/DOUBLEPOST]
Этт нормально... Акум старый?
Акум старый.
Снял вчера клапаную крышку,в одном колодце масло.Резинки свечных кололцев поплавились.Может и из-за этого.
 

antidevastator

Редкий гость
30 Август 2016
5
0
0
41
Езжу на ...
suzuki jimny wide 1998 год. jb33w g13b
Беда не приходит одна...продолжение...

Уже написал, что машинка поехала. А потом просто не завелась. Как выяснилось сдох аккум и видимо сигналка или иммобилайзер не давали запуститься. Завтра поеду за новым...то что я его зарядил, на долго не хватит...можно и с утра уже не уехать. А я уже весь изнервничался и кучу вариантов пересмотрел...успел ужаснуться как у нас все печально с заменой топливного насоса...

Еще выяснилась одна проблемка. Автомат не хотел сниматься с паркинга. Хрен знает с какой попытки я его снял. Не выжимается кнопочка на ручке и все тут. Из за чего это может быть?

И что делать дальше с автоматом. При переключении на вторую, скорость включается не сразу а с задержкой. Как с пробуксовкой на секундочку.
Это следствие грязного масла( ведь я его заменил частично)? Или все таки это уже сгоревшие фрикционы так себя проявляют? Масло то уже воняло горелым.

И что делать? Посоветуйте пожалуйста.
Ехать в автосервис и делать полную замену масла с промывкой? Ехать к спецам за советом и возможно в ремонт акпп/контрактная акпп? Или сделать еще раз частичную замену и посмотреть на результат?...

За что так джимка со мной....